18.AV90
PROTEC - Pystyluukku sähkötoiminen
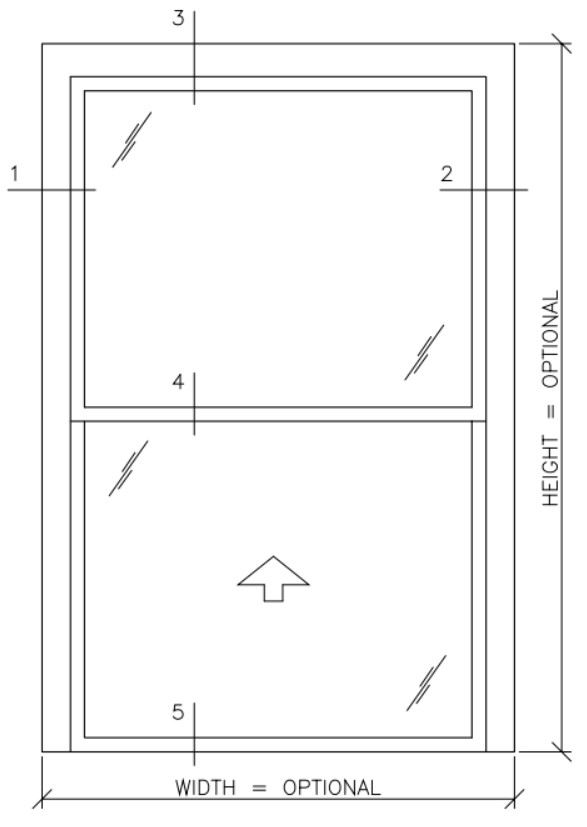
Mitta:
Pystysuunnassa liukuva asiointiluukku sisä- ja ulkokäyttöön.
Vankka, pystysuunnassa liukuva, sähkökäyttöinen ikkuna leveille aukkoille. Soveltuu sekä sisä- että ulkotiloihin.
Liukuikkunassa on alumiinirunko ja se voidaan varustaa eristyslasilla tai jopa 20 mm paksuisella turvalasilla. Malli AV90
voidaan valmistaa kahdella tai useammalla liikkuvalla osalla vapaan aukon koon maksimoimiseksi. Vakioversionaan
luukku on luonnonväri alumiini ja varustettu D4-12-eristyslasilla. Runko voidaan viimeistellä jauhemaalauksella,
anodisoimalla muissa väreissä tai ruostumattomasta teräksestä. Liukuva ikkuna on varustettu putoamisenestolaitteella
ja se lukitaan automaattisesti suljettuun asentoon. Käytetään ohjauskytkimellä, jolla paina ja pidä painikke.
Tuotekoodi: 18.AV90
Paino: 107,5 kg
Myynnin pakkauskoko: 1 tk





